Ruim appartement met terras, garage en 2 slaapkamers in Gent - bouwjaar 2003, energielabel A, bewoonbare oppervlakte 113.00 - ideaal voor stadsliefhebbers!
Dit ruime appartement in Gent - coupure biedt alles wat je nodig hebt voor comfortabel wonen. Het appartement is gelegen in een rustige buurt en heeft een prachtig terras waar je kunt genieten van de zon en het uitzicht op het mooie park. Daarnaast beschikt het appartement over een garage, zodat je altijd verzekerd bent van een parkeerplek voor je auto.
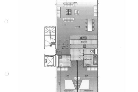
Met 2 slaapkamers is dit appartement ideaal voor een klein gezin, een stel of iemand die graag een extra kamer heeft voor bijvoorbeeld een thuiskantoor. De bewoonbare oppervlakte van 113.00 biedt voldoende ruimte om comfortabel te leven en te ontspannen.
Het appartement is gebouwd in 2003 en heeft daardoor een moderne uitstraling. Dankzij het energielabel A is het appartement ook nog eens energiezuinig, wat zorgt voor lagere energiekosten.
Kortom, dit appartement in Gent is een ideale woning voor wie op zoek is naar een standaard, maar comfortabele en moderne woonruimte met alle gemakken. Met een garage, 2 slaapkamers, een terras en een energiezuinig label, voldoet dit appartement aan alle wensen en eisen voor een fijn thuis.
Algemene informatie
Gent





















